Button Rheintaler Plus - Abo benötigt Freizeitanlage 18.12.2024

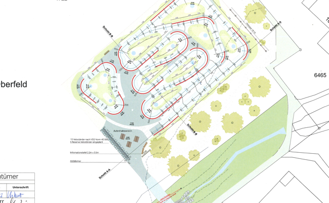
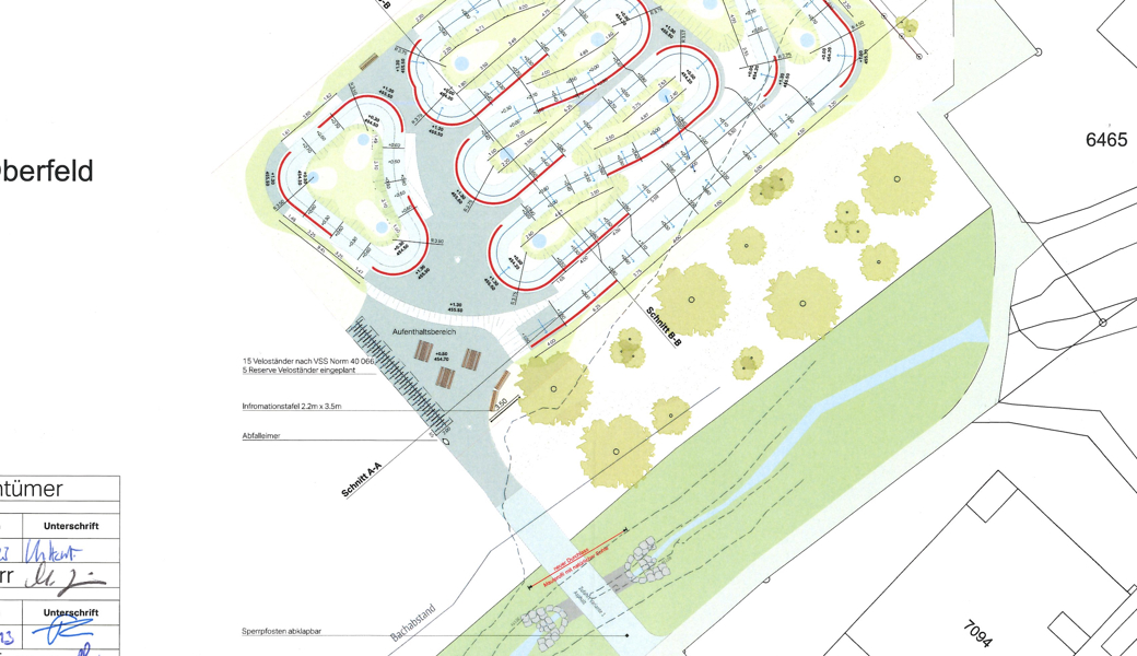
So wird der Altstätter Pumptrack aussehen

Eigentlich wollten die Initianten des Altstätter Pumptracks diesen bereits vor über zwei Jahren fertiggestellt sehen – doch erst jetzt kann es bald losgehen. Die Stadt arbeitet noch an den letzten Einsprachen.

Von Sara Burkhard
aktualisiert am 18.12.2024

Jetzt weiterlesen, mit dem passenden Rheintaler-Abo

Geben Sie Ihre E-Mail-Adresse und ihr Passwort ein und klicken dann auf die Schaltfläche "Anmelden".

Anmelden

Sie sind noch nicht registriert?

Sie haben ein Abo und möchten sich erstmals auf der Website registrieren?

Jetzt registrieren
Abo Aktion schliessen
News aus der Region?

Alle Geschichten, alle Bilder

... für nur 12 Franken im Monat oder 132 Franken im Jahr.